Продается 4к.кв.,
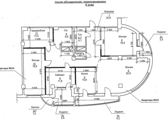
Арт. 101186651 Продаётся шикарная 4-х комнатная квартира (евро). Огромная кухня-гостиная, три спальни, два санузла, сделана инсталяция ( один раздельный, один совмещенный) и предусмотрена просторная комната для хранения( можно использовать под кабинет или гардеробную). В квартире сделана большая часть строительных работ: дополнительно утеплены все наружные стены, поменяны все окна на м/п Rehau, выполнена разводка по всей квартире из гостовских материалов, выводы под сплит системы в каждой комнате. Заменена вся система отопления, сантехника, в том числе на кухне, установлены и подключены все приборы учета воды, электроэнергии. Все стены качественно оштукатурены ( готовы под шпаклевку). Панорамное остекление одной лоджии. Оригинальная, но грамотно-спланированная планировка квартиры. Соединены две квартиры в одну, все перепланировки в помещении узаконены. Прекрасное качество постройки дома, сдан в 2018г. Из кирпича. Удобное месторасположение, площадь Ленина, не нуждается в рекламе. Без обременений. Возможна любая форма расчёта. Больше 5 лет. Прекрасная квартира для дружной семьи. Инфраструктура в шаговой доступности. Будем рады показать квартиру в любое время. Ждём своего доброго покупателя.













































