1-комнатная в Центре Пензы
Арт. 123460432 Продаю 1-комнатную квартиру по ул. Ворошилова, 13.
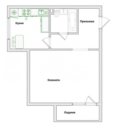
Застройщик «Пензастрой». Кирпичный дом 2011 года.Квартира на 9-ом этаже этого 10-ти этажного дома.Полноценный технический этаж. Площадь квартиры 39.3 кв. м. + 3.3 кв. м. лоджия. Итого 42.6 кв. м.
Площадь жилой комнаты 20 кв. м. Кухня 9 кв. м. Высота потолков 2.6 м. В Квартире:
- На полу ламинат, - Потолки натяжные, - Санузел в современном кафеле, - Лоджия с панорамным остеклением и просто шикарным видом! - В подарок покупателю - кухонный гарнитур. Дом в центральном районе г. Пензы,
При этом рядом нет шумных дорог. Территория огорожена. На территории: - детская зона, - видеонаблюдение, - парковка. Рядом:
- детские сады № 99 и 110, - школа № 58 и финансово-экономический лицей, - Множество магазинов, включая ТЦ «Суворовский» - Областная филармония и ККЗ «Пенза». Квартира свободна от проживания и регистрации.
Звоните и приходите на показ!





























