Продается дом,
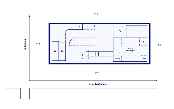
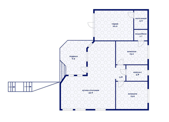
Арт. 119512720 Уникальное предложение — дом у моря в Геленджике!Расположен в живописном курортном посёлке Архипо-Осиповка, всего в 300 метрах от центрального пляжа!— Площадь участка — 6 соток— Просторная кухня-гостиная и три уютные спальни— Крытая терраса — идеальное место для отдыха в любое время года— Свой гараж и беседка на участке️Коммуникации:— Газ — по меже (возможность подключения)— Вода — центральная— Канализация — центральная— Отопление — электрический котёлПосёлок Архипо-Осиповка — это одно из самых популярных и живописных мест на Черноморском побережье.Рядом — чистейшее море, горы, набережная, кафе, рестораны, магазины, аптеки, рынок.Отличное место как для постоянного проживания, так и для отдыха или сдачи в аренду.Документы готовы к продаже, один собственник.Звоните — отвечу на все вопросы и организую просмотр!





































