Студия дешевле чем у застройщика!
Студия 27,61 м ЖК ДубровскийПушкин
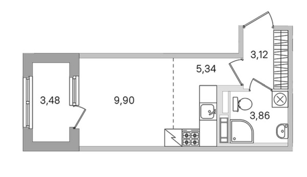
Об объекте Количество комнат Студия Площадь 27.61 кв.м Площадь кухни 5.3 кв.м Этаж/Этажность 2/4Тип дома Кирпич/Монолит Срок сдачи 4 кв. 2026 Корпус 4 Секция 2 Наличие отделки Чистовая Форма договора Уступка с ДДУ Застройщик КВС
Ключевые особенности: Бизнес-класс, Высокие потолки (от 3 м),Закрытая территория с охраной,Современные детские и спортивные площадки,Благоустроенные зоны для отдыха и прогулок, Наличие коммерческих помещений на первом этаже (кафе, магазины, салоны красоты)Форма договора: Уступка с ДДУЗастройщик КВСЖК "Дубровский" от КВС это проект бизнес-класса в городе Пушкине. Проект будет строится в 4 очереди, кроме жилых домов застройщик намерен построить детский сад на 330 малышей и школу на 825 учеников. Кроме этого в квартале откроется клиника, которая будет принимать по ОМС. В ЖК "Дубровский" планируется открытие собственного променада с местами отдыха для жителей, пунктом обмена книг, шахматными столиками и столами для пинг-понга.
Отделка Коллекция «Светлый» выполнена в светлых тонах, основой для оформления стен выбран белый цвет — он визуально расширяет пространство. В качестве тона для ламината и дверей используются актуальные светлые оттенки. Натуральность отделке придает искусная имитация фактуры дерева. Для отделки ванной комнаты и санузлов использована керамическая плитка с матовой поверхностью и однотонным рельефным рисунком, а также имитацией под светлое дерево. Завершают образ качественная сантехника и аксессуары.
Итог: Чистовая отделка «ЖК «Дубровский»:Пол: ламинат; санузел — керамическая плитка
Стены: виниловые обои нейтральных тонов; санузел — керамическая плитка
Потолок: белая акрилатная краска
Электрика: розетки, выключатели
Сантехника: радиаторы отопления; раковина, унитаз, ванна, смесители
Прочее: счетчики воды и электричества, межкомнатные двери
Мебелировка (можно дополнительно заказать)Рассмотрите взвешенные, грамотные конструктивные решения при производстве каждого ком
Арт. 127663492





























