БЕЗ КОМИССИИ! ПРЯМАЯ АРЕНДА!
Аренда нежилого помещения в центре Москвы
Адрес: Москва, ул. Знаменка, д. 13, стр. 3
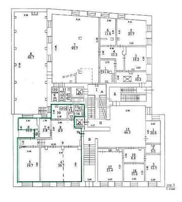
Площадь помещения: 111,4 кв. м
Расположение: 1 этаж административного здания.
4 кабинета + 2 помещения под хозяйственные нужды + санузел
НДС. Юр. Адрес. ИФНС № 4
Преимущества объекта:
1. Отдельный вход/выход
2. Возможность парковки (предоставление машиноместа по отдельному договору аренды) в центре Москвы.
3. Шаговая доступность от станции метро (м. "Боровицкая", м. "Библиотека имени Ленина", м. "Арбатская")
Инфраструктура офисного пространства:
1. Приточно-вытяжная вентиляция
2. Отдельные кондиционеры в кабинетах.
3. Круглосуточная охрана
4. Видеонаблюдение
5. В здании также расположен ресторан
6. Возможность изменения конфигурации кабинетов (за исключением несущих стен!)
Евгений Р.































