Арт. 33250624 Продается 3-х комнатная квартира в современном ЖК «Экопарк «Дубрава» г.Казань, ул. Дубравная , д.28Б

Общая площадь 134,4 кв.

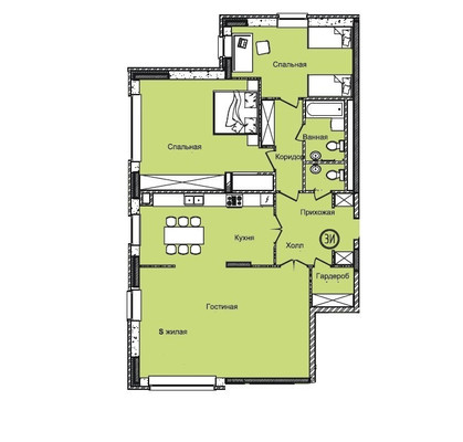
Удобная планировка квартиры.
2 санузла.
Подземный паркинг на -1 этаже.

Чистая продажа.
Квартира без долгов и обременений.
«Экопарк «Дубрава»- это современный жилой комплекс, расположенный в экологически чистом и тихом районе г Казани в непосредственной близости к лесу.
- Развитая инфраструктура;
- Детские площадки;
- Подземный паркинг;
- Консьерж в каждом подъезде;
- Круглосуточная охрана;
- Рядом школа №150, гимназии № 6, 16, 19, детский сад №130, 131;
- В пешей доступности станция метро «Дубравная».

Рядом ТЦ: «Южный», «Мега», «Франт», «Проспект».
Рядом улицы: Проспект Победы, Рихарда Зорге, Комиссара Габишева, Сафиуллина

Ипотека
Да
Отопление
Центральное
Сан.узел
Раздельный
Пассажирских лифтов
1
Статус
Свободна
Высота потолков
3 м
Интернет
Телефон
Спутниковое / Кабельное ТВ
Доступно людям с ограниченными возможностями
Консьерж
Охраняемая территория
Мусоропровод
Газ
Огороженная территория
Домофон
Счетчики воды
Пандус
Тип предложения
Вся квартира
Площадь
134,4 м2
Жилая
85 м2
Кухня
21 м2
Площадь комнат
[85] м2
Комнат всего
3
Материал стен
Монолит-кирпич
Тип
Типовая
Ремонт
Под отделку
Этаж
2 из 18
Район
Приволжский