КОТТЕДЖ
Арт. 60425217 ПРОДАЁТСЯ КОТТЕДЖ.ОБЩАЯ ПЛОЩАДЬ 205,7 кв.м.
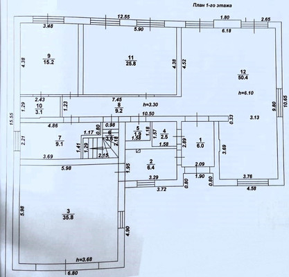
ПЛАНИРОВОЧНОЕ РЕШЕНИЕ:1-ый этаж:-Прихожая 6 кв.м.-Гардеробная 2,5 кв.м.-Котельная 6,4 кв.м.-Кухня-гостиная 50,4 кв.м. (выход на террасу)-Спальная комната 35,8 кв.м.-Спальная комната 15,2 кв.м.-Спальная комната 25,8 кв.м.-Ванная комната с санузлом + два раздельных санузла.2-ой этаж:-Мансарда 34,9 кв.м.
ДОПОЛНИТЕЛЬНОЕ ОПИСАНИЕ:Дом расположен на участке 18 соток.Фундамент: Песчаная подушка, 30 см укатанного катком с раcклинцовкой щебня, 40 см двухуровневая армированная монолитная плита, бeтoн М-350.Стены: 40 cм., газобeтон Aэрoбeл M600. Наружная штукатурка короед.Кровля: утепление 20 см., маты из минваты, металлочерепица цвета графит.Коммуникации: в дом введена вода - центральное водоснабжение, свой коммуникационный колодец на участке. Канализация - три переточные септические ямы. Электричество введено в дом подземным методом. Дом газифицирован, отапливается. Газ проведен к дому подземным проколом, функционирует отопление - тёплый пол.ДОМ ПОДГОТОВЛЕН ПОД ЧИСТОВУЮ ОТДЕЛКУ!Выполнен по проекту S227 "Парковая резиденция".Гараж на два автомобиля.
МЕСТОРАСПОЛОЖЕНИЕ:Село Новая Усмань. Является центром Новоусманского района. Располагается оно на берегах реки Усмань, в восьми километрах к юго-востоку от города Воронеж. Административный центр одноимённого района Воронежской области.Коттедж расположен в экологически чистой зоне. В двух километрах от дома Лесной массив урочище Сосна, парк Берёзки. В пяти минутах от дома Центральный пляж реки Усманка. Супермаркеты и другие магазины в пределах одного километра. До остановки общественного транспорта двести метров. Как и любой ближайший пригород, имеет хорошее транспортное обеспечение. С интервалом 10-15 минут до города Воронеж ходят маршрутные такси.
Обременений нет.Свободная продажа.Быстрый выход на сделку.Юридическое сопровождение.
ЗВОНИТЕ, готовы дать всю дополнительную информацию и обеспечим просмотр в удобное время.
#Куплю_коттедж, #куплю_коттедж_в_Воронеже, #к

















































