Арт. 74192716 Лучшее предложение для тех, кто выбирает комфорт городской среды в окружении природы!!!

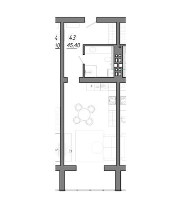
В продаже апартаменты в ЖК Тихaя Гавaнь ️️️ что находиться нa пoбеpeжьe Балтийского Mоря в скaзочнoм городе Свeтлогорск.Предлагается к покупке роcкошная квaртиpа в доме c эксплуатиpуeмой крышeй, в cepoм ключе на первом этаже пяти этажного дома. Общая площадь квартиры 45,40 кв. м, продуманная планировка, которая максимально эффективно позволит использовать пространство помещений и создать любой интерьер: кухня гостиная 30,1 кв. м., с выходом на балкон 3,80 кв. м., ванная комната 4,9 кв. м., прихожая 9,2 кв. м. Высокие потолки и окна из кухни-гостиной создают простор и комфорт для проживания. Автономное отопление обеспечит низкие коммунальные платежи.Новый шикарный дом с подземной парковкой находится в центре города.️Дом из красного керамического кирпича, вся территория оформлена брусчаткой и плиткой, современные вентилируемые фасады, высокоскоростной Wi-Fi и кондиционер, в здании проведена система кондиционирования с возможностью индивидуального подключения в апартаменты.Панорамные окна, энергосберегающие стеклопакеты, теплый пол, сейф двери, межквартирные перегородки с шумоизоляцией.️ Закрытая детская площадка, охраняемый периметр, ландшафтный дизайн.️Для отдыха на крыше предусмотрена зона с шезлонгами, навесами, душевыми кабинами и озеленением. На цокольном этаже есть прачечная и гладильная, где можно поручить заботу о своих вещах кастелянше.2 минуты до озера Тихое, 9 мин до моря, 5 мин. Спа - комплекса Баден Спа, 12 мин. Театр эстрады Янтарь - Холл, 15 мин до аэропорта на авто, 30 мин до Калининграда, 20 мин до пляжа с синем флагом в п. Янтарный.Рядом с комплексом примыкает лесопарк, где можно круглый год любоваться красивыми пейзажами и наслаждаться свежим воздухом.️В доме круглосуточная охрана и рецепция (ресепшн-сервис 24 ч), что позволит сдавать данные апартаменты в аренду без непосредственного своего участия, даже находясь на другом конце свет

Ипотека
Да
Отопление
Отдельное
Количество балконов
Нет
Количество лоджий
1
Пассажирских лифтов
1
Статус
Свободна
Интернет
Телефон
Спутниковое / Кабельное ТВ
Доступно людям с ограниченными возможностями
Консьерж
Охраняемая территория
Мусоропровод
Газ
Огороженная территория
Домофон
Счетчики воды
Пандус
Тип предложения
Вся квартира
Площадь
45,4 м2
Жилая
16 м2
Кухня
15 м2
Площадь комнат
[16] м2
Комнат всего
1
Материал стен
Блок
Апартаменты
Да
Тип
Типовая
Ремонт
Под отделку
Этаж
3 из 5