ВЫГОДНОЕ ПРЕДЛОЖЕНИЕ!!!
Продаётся 3 комнатная квартира в самом центре города в сданном и заселённом доме, в
ЖК Рассвет. Дом премиум класса! Отличное расположение дома,
квартира с шикарным видом на горы, кирпично-монолитный, с качественными панорамными окнами. Жилье предоставляет возможность воплотить в жизнь все свои дизайнерские идеи, завершив отделку по своему вкусу!
Цена ниже, чем от застройщика!
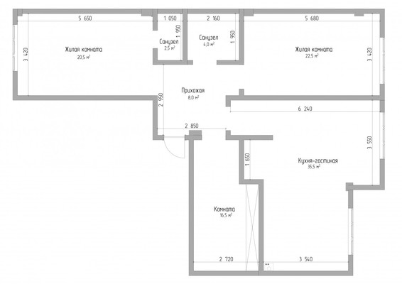
Квартира с продуманной планировкой
Окна выходят в обе стороны
В квартире большая прихожая (14 м2), 2 изолированные спальни (в одной спальне отдельная душевая и санузел), кухня-гостиная, санузел и гардеробная
Тёплые полы в прихожей, гардеробной, санузлах и на кухне
Квартира подготовлена под обои
Все коммуникации проведены
Индивидуальное отопление
Вся инфраструктура рядом
Документы готовы к продаже! Полное юридическое сопровождение сделки!
Эта квартира может стать вашей! Спешите приобрести!!!
Арт. 60667636











































