Псн- Особняк

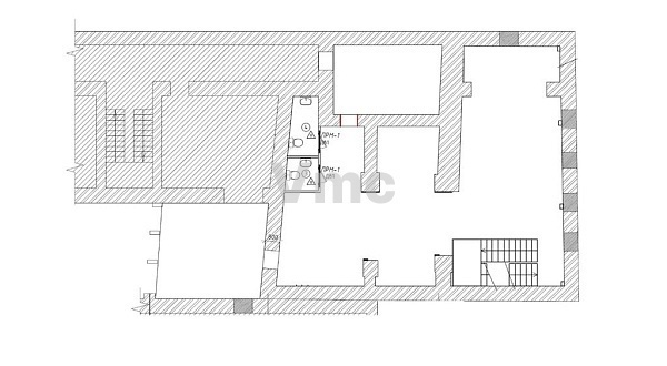
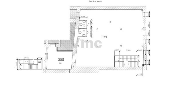
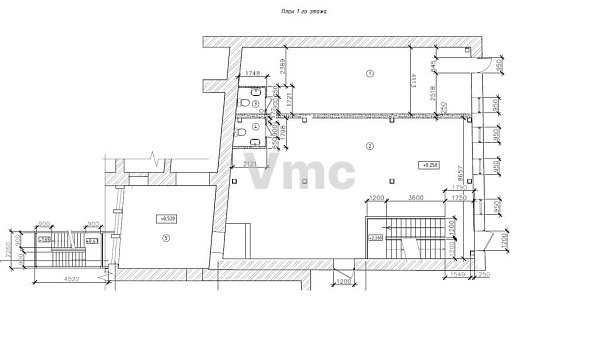
Первая линия. Великолепный особняк.В шаговой доступности: м. Трубная, м. Кузнецкий Мост, ЦУМ, Неглинная плаза. 1-я линия домов. писание помещения: Двухуровневое помещение 450 м2 расположено на 1-ом и цокольном этажах. Мощность 100 КВт. Все новые центральные коммуникации - вода холодная, отопление городское. Высота потолков 1 этаж - 4 м, цоколь - 3 метра с окнами. В зоне высокого пешеходного и автомобильного трафика, по внутренней стороне Садового кольца, исторический район города с пешей доступностью к городских достопримечательностям. Конструктив: кирпич, ж/б перекрытия. Центральные коммуникации. Здание. Описание помещения: Отдельный вход. Планировка: кабинетная и смешаная. Налоговая: 02. Лифты: нет. здание 706 м2, 130 КВт, вода, отопление городское, высота потолков 1 этаж 3,6, второй этаж 6.26 метров, подвал 3 метра с окнами. Первая линия. Рождественки, высокий трафик. Возможно увеличение площади на 350 кв.м. Есть внутренний двор с возможностью размещения летней веранды. Цена указана с учётом НДС.

Тип парковки
Наземная
Ремонт за счет владельца
Возможность менять провайдера
Первая линия
Ресторан
Фитнес
Банк
Банкомат
Супермаркет
Арендные каникулы
Интернет
Доступ 24 часа
Видео-наблюдение
Охраняемая территория
Контроль доступа
Есть оборудование
Отдельный вход
Площадь
450 м2
Налог
НДС включен
Тип использования
Любой
Тип здания
Особняк
Состояние помещения
Готово к въезду
Этаж
1 из 2
Вход в объект
Отдельный с улицы