Продается дом,
Арт. 101542219 В продаже основательный, добротный дом площадью 104,1 кв.м. в качественной предчистовой отделке! Дом располагается на ровном земельном участке прямоугольной формы площадью 6,3 соток в живописнейшем месте, идеальном для проживания и отдыха от городской суеты - п. Урмай Никольского сельского поселения Лаишевского района. Зонирование от основной дороги хвойной лесополосой! Рядом въезд и выезд с платной трассы. На данный момент идет расширение дорожного полотна в связи с улучшением инфраструктуры зоны Аэропорта.
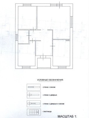
Дом имеет продуманную и эргономичную планировку, которая включает в себя: входную группу, просторную кухню-гостиную с выходом на террасу, 3 жилые комнаты, большой санузел. За счет высоты потолков (3 м.) в доме много света и воздуха.
Строительство осуществляли для себя, используя современные материалы с соблюдением всех технологий:Фундамент - из буроналивных свай с ростверком глубиной 2,5 м.
Стены - из керамических блоков с облицовкой из керамического кирпича, утеплителя 10 см каменной негорючей ваты производства Технониколь, 12 см облицовочного кирпича. Общая ширина стены 52 см.
Полы - плиты перекрытия
Окна марки Rexay заводские (тройной стеклопакет, пятикамерный профиль, энергосберегающий стеклопакет)
Отопление и горячее водоснабжение обеспечивает двухконтурный газовый котел Baxy (Италия) на 24 кВт
Канализация - септик на три кольца
На 1 этаже везде установлены теплые полы
Крыша дома выполнена с использованием металлочерепицы и утеплением потолка 20 см утеплителем Knauf
Все коммуникации (газ, электричество, вода (скважина)) проведены
Земельный участок с достаточной площадью для ведения приусадебного хозяйства, строительства гаража, бани, беседки, зоны барбекю.В непосредственной близости школа, детский сад, остановка общественного транспорта, продуктовый магазин. В ближайшей перспективе планируется строительство собственного детского сада, парковки со шлагбаумом и охраной!Преимуществом расположения является прекрасная локация - с























































