Продам дом, Восточная ул, Дубровский п, 1 км от города
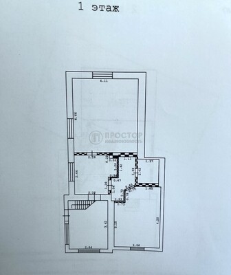
Код объекта: 1575466.<br>Продаётся уютный дом для большой семьи в посёлке Дубровский<br> <br>Преимущества:<br>- Расположение. Дом находится всего в 1 км от города, что обеспечивает удобный доступ ко всей городской инфраструктуре. Рядом расположены школы, детские сады, магазины, аптеки и спортивные клубы. Это идеальное место для тех, кто ценит комфорт и удобство.<br>- Площадь. Общая площадь дома составляет 84,3 кв. м, а жилая площадь — 62 кв. м. В доме три комнаты площадью 10, 12 и 40 кв. м соответственно, а также просторная кухня площадью 7 кв. м. Высота потолков — 2,75 м.<br>- Материал постройки. Дом построен из бруса, перекрытия деревянные. Крыша покрыта металлочерепицей, что гарантирует долговечность и надёжность.<br>- Коммуникации. В доме проведены все необходимые коммуникации: электричество, водоснабжение, газ, канализация. Отопление осуществляется за счёт собственной котельной.<br>- Участок. Площадь участка составляет 8 соток. Подъезд к участку асфальтированный. Участок предназначен для личного подсобного хозяйства.<br> <br>Юридическая информация:<br>- 1 взрослый собственник, более 15 лет.<br>- Под ипотеку подходит.<br>- Рассмотрим любой источник финансирования по сделке.<br>- Без обременений.<br> <br>Услуги:<br>- Оперативные показы<br>- Бесплатное одобрение и получение ипотечного кредита<br>- Специальные условия и преференции от ведущих банков-партнеров<br>- Безопасность сделки и качество предоставляемых услуг обеспечивается стандартами Гильдии Риэлторов Москвы.

















