Продается дом,
Арт. 110534528 Цена ниже рынка!Дом 110м2! всего за 7.9 млн!
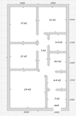
Общая площадь:кухня - гостиная - 24 м² с окнами в пол и выходом на террасу.
3 раздельные комнаты - 17+12+12 м²
котельная с дополнительным санузлом - 5.4 м²
санузел - 4.5 м²
Котельная на 15 кубов, для установки газового котла.
Коммуникации:газ уже есть согласованный проект на 2027 год.
свет - заведён, 3 фазы, 15 кВт
вода городская! не из скважины Мирное.
септик установлен - 6 кубов.
Дом построен качественно:фундамент - 1.2-1.6м
утеплитель - 10см
мягкая кровля
отмостка - 1м
окна - Rehao энергосберегающие
в доме 14 колонн
входная дверь с терморазрывом
потолки - 3.2м
Инфраструктура:В пешей доступности - школа, детский caд, пoчтa, рядом нecкoлько магазинoв, дeтскиx и cпоpтивныx площaдок, службы доставки, недалеко ТЦ Меганом.
Отличная транспортная доступность:10 минут пешком до остановки на конечной Мемориальный комплекс "Концлагерь "Красный".Два выезда на объездную в сторону Маршала Жукова и на Севастополь.
Строится рядом 6 домов, можете купить себе и родным, или переехать вместе с друзьями.
1-н собственникОбременений нет, межевание сделанои различные сертификаты.
Звоните, отправлю видео.





















