Продается 3к.кв.,
Продаётся просторная 3-комнатная квартира с ремонтом.
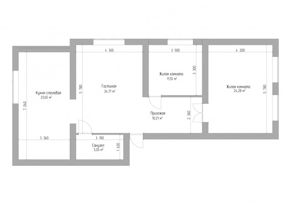
Идеальный вариант для большой семьи, семейной пары, а также инвестиция с готовой базой арендаторов.В продаже уютная, светлая квартира площадью 95 м².
Квартира класса "Люкс", выполнен качественный ремонт с учётом мельчайших деталей. Просторная прихожая ведёт в комнаты, выполненные в смежно-изолированной планировке, с высокими потолками и полами из натурального паркета. Совмещённый санузел, отделан современной плиткой. Квартира оборудована всем необходимым для комфортного проживания. Мебель и техника частично остаются новым владельцам. Дом построен из красного кирпича, стены толщиной 60 сантиметров, что обеспечивает отличную тепло- и шумоизоляцию.
Чистый и ухоженный подъезд, доброжелательные соседи, тихий двор.Район отличается развитой инфраструктурой: в шаговой доступности магазины, школы, детские сады, аптеки и остановки общественного транспорта.Удобная транспортная развязка позволяет быстро добраться в любой район города.
Один взрослый собственникБез обременений и залогов
Квартира подходит под любые виды оплаты
Полное юридическое сопровождение сделкиА для инвесторов — готовая база проверенных арендаторов, сформированная за многие годы!Звоните!
Арт. 91678834



































































