Продается 2-х комнатная квартира
Арт. 116175735 ЭСКЛЮЗИВНАЯ ПРАВА ПРОДАЖИ
Продается 2-комнатная квартира в Музыкальном микрорайоне
Основные характеристики:
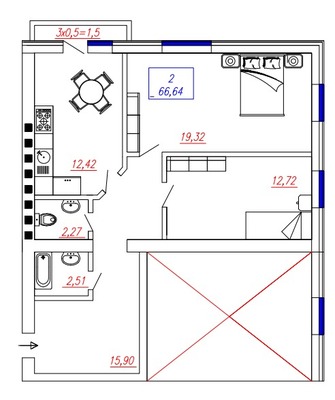
• Площадь: 64 м2• Этаж: 2 из 6• Расположение: Музыкальный микрорайон• Планировка: • Две изолированные комнаты • Просторная кухня • Балкон• Состояние: • Санузел требует ремонта
Преимущества:
Расположение: Развитая инфраструктура, в шаговой доступности: Гипермаркет "Лента"
Магазины "Магнит", "Пятерочка"
Транспортная доступность:Удобный выезд на Ростовское шоссе (в сторону моря)
Остановки общественного транспорта в пешей доступности
Близость к основным объектам:Красная площадь: 5 км
Галерея: 11 км
Парк Галицкого: 9 км
Образовательные и медицинские учреждения:Школа №66: 5 км
Школа №103: 4 км
Детские сады №194, 171, 127
Поликлиника для взрослых №16
Детская поликлиника №16
Документы:Прямая продажа
Без обременений и долгов
Быстрый выход на сделку
Мебелировка:В квартире остаётся кухонный гарнитур, вопрос по остальной мебели и технике обсуждается индивидуально.
Специальное предложение от компании "Самолет Плюс":Возможность приобретения квартиры по субсидированной ставке 13,75%















































































