Семейное гнездо в ЖК Времена года
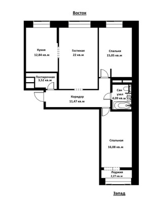
Арт. 116656907 Семейная трехкомнатная квартира с двумя санузлами в ЖК "Времена года"!О квартире: • Функциональная планировка: спальня 15 кв.м, детская 16 кв.м, гостиная 22 кв.м с выходом на просторную кухню 13 кв.м, два санузла, отдельная постирочная, уютная лоджия. • Двухсторонняя: окна кухни, гостиной и спальни смотрят на восток (во двор), вторая спальня выходит на запад (на тихую улицу). • Высокий 13 этаж с хорошими видовыми характеристиками: вид на небо, во двор и на исторический центр Санкт-Петербурга. • Выполнен качественный ремонт, который делали для себя, можно быстро заехать и жить без забот о ремонте.О доме: • Кирпично-монолитный 2016 года постройки. • Собственная парковка за шлагбаумом, а также подземный паркинг. • Высокая шумо- и звукоизоляция. • Небольшое количество квартир на этаже. • Эстетическая отделка фасада, входной группы и этажей. Преимущества локации и инфраструктуры: • Престижный район с удобной транспортной доступностью. • Закрытая охраняемая территория с круглосуточным видеонаблюдением. • В комплексе: свой детский сад, игровые площадки для детей разного возраста, салоны красоты, Новозеландская пекарня, Вкусвилл, красивое озеление и другие удобства для комфортной и достойной жизни. • Рядом школы N 374 и N 307, экономический лицей N 373, музыкальная школа N 31, детские сады, спортивные клубы, рестораны, кафе, магазины, набережная, Балтийский вокзал, несколько станций метро: Фрунзенская (5 минут), Технологический институт (15 минут), Балтийская (11 минут пешком). Московские ворота.О документах и условиях сделки: Приобретена у застройщика без ипотеки и маткапитала. Без обременений и ограничений. Полная стоимость в договоре. Условие продажи – встречная покупка (варианты на примете уже есть, выберем быстро).Звоните, чтобы получить подробности и записаться на просмотр. Не упустите уникальное предложение в этом жилом комплексе!























































