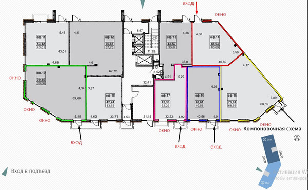
Площади от 42,36 / 97 / 173,85 кв
Арт. 116991011 Вашему вниманию предлагается Помещение Свободного НазначенияКлючи в 3 квартале 2025 года, идёт сбор заявок.Площади: от 42 кв.м. до 173,85 кв.м.( 42,36 / 48,61 / 48,63 / 49,74 / 52,79 / 76,61 / 79,45)Преимущества: 1 этаж
доступ 24/7
Место под вывеску и кондиционеры
Увеличенный оконный проем, много света
безбарьерная среда
есть возможность объединения площадей
парковочные места у дома
в радиусе 1 км более 6800 тыс. чел. (цифра лишь увеличивается)
находится у основного парка соединяющий 2-а ЖК ( ЖК Сказочный лес и Палитра) ,основная прогулочная зона. Весь пешеходный трафик идущий с Палитры, будет проходит через ваши помещения в сторону остановки на ул. Рауиса Гареева
в 50 метрах от единственного паркинга, где будут парковаться все жители ЖК
Арендные каникулы, льготный период
Звоните пишите! Идёт сбор заявок!

































