Продается дом,
Арт. 117305102 Ищете свой дом по выгодной цене? Предлагаем вам рассмотреть вариант в блок-секции на огороженной территории по адресу: Северная гора, ул. Корсунская.
Почему стоит обратить внимание на это предложение:Рядом с домом расположены торговый центр «Акорус», школа и детский сад, что делает его удобным выбором для семей с детьми.
Благодаря тому, что земля относится к Гурьевскому району, тарифы на свет и газ — сельские, что ниже городских. Вы сможете существенно сэкономить на коммунальных платежах.
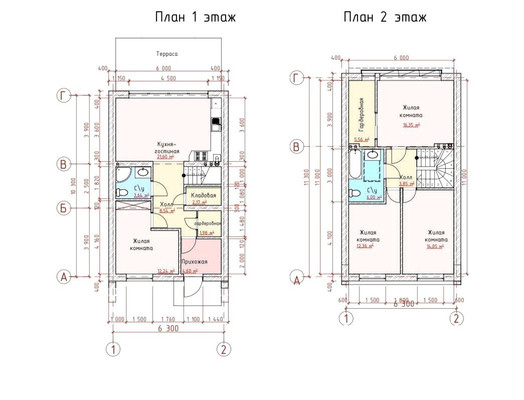
Дом имеет два полных этажа и площадь 135 м². Высота потолков — 3 метра.
Категория земель — индивидуальное жилищное строительство (ИЖС).
Год постройки — 2025, материал стен — кирпич.
В доме есть терраса или веранда, газовое отопление, водоснабжение от скважины. Подведён интернет (Wi-Fi).
Требуется ремонт.
Площадь участка составляет 2,6 сотки.При покупке за наличные предусмотрена скидка % .Не упустите возможность приобрести уютное жильё по выгодной цене!







































































