Отличная квартира на 2 этаже
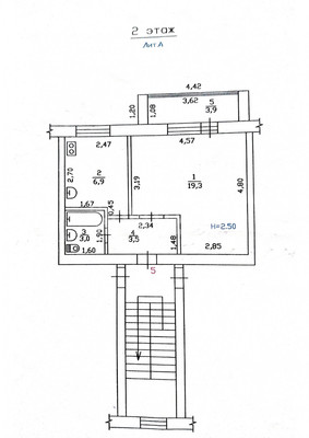
Арт. 117335742 #лот1173357442нт Продаётся отличная однокомнатная квартира общей площадью 36,6 м2 на 2 этаже, кирпичного дома в самом центре города Горячий Ключ. В шаговой доступности остановка общественного транспорта, налоговая, пенсионный фонд, магазины различной направленности, городской рынок, торговый центр, сбербанк, администрация, детский сад, новая школа и т.д. В 10 мин. ходьбы городской парк с озером, отличная набережная для прогулок, излюбленное место для отдыха местных жителей и гостей города. аллея "1000 сосен" Дом стоит недалеко от центральной дороги, но окна выходят на зелёную дворовую территория, шума нет, тихий, комфортный уголок. Подъезд чистый, аккуратный, без запаха. На площадках всего 3 квартиры, хорошие соседи. В квартире сделан полный ремонт, новая электропроводка, выровняли стены, установлены новые батареи, заменены трубы по воде, отоплению, канализации. В доме был 2 года назад кап. ремонт. В квартире натяжные потолки, ламинат в комнате, плитка на полу в коридоре, ванной и кухне. Установлены счётчики на воду, свет, установлен бойлер на 100 л., это экономично (взамен горячей воды).Проведён скоростной интернет, установлена телевизионная тарелка. Квартира на 2 этаже, комната 19,3 м2, кухня 6,9 м2, совмещённый санузел- 3м2, застеклённый балкон - 3,9 м2. Отличная придомовая территория, не проездная территория, наземная парковка, мест для машин достаточно. Один, собственник обременений нет, документы проверены и готовы к сделке. Стоимость квартиры-рыночная!!!
В квартире частично остаётся мебель и техника. Работаем с различными источниками финансирования, в том числе проводим межрегиональные сделки.Эта квартира уже ждёт вас!!! Звоните, пишите, спешите, покупайте!!!















































































