1704557 Продается 2-х комнатная квартира, расположенная в добротном, кирпичном доме (застройщик RBI) в шаговой доступности от метро.
Преимущества квартиры:
1. Расположение:
- Рядом станция метро "Дунайская" (14 минут пешком)
- Развитая инфраструктура района: магазины, школы, музыкальная школа, детсады, кафе, рестораны, медицинские учреждения, больницы и др. соц.объекты в шаговой доступности.
2. Технические характеристики:
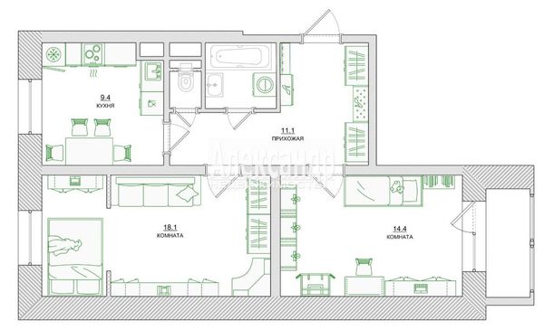
- Общая площадь квартиры: 56,8 м²
- Площадь кухни: 9,4 м²
- Размеры комнат: 18,1 м² и 14,4 м²
- Застекленный балкон площадью 2,65 м²
3. Ремонт и отделка:
- Качественный ламинат 33 класса в жилых помещениях
- Керамогранит на кухне, в коридоре, туалете и ванной комнате
- Ванна облицована кафелем, установлен унитаз "Geberit" с инсталляцией
4. Комфорт и безопасность:
- Закрытая придомовая территория с охраной 24 часа в сутки
- Система видеонаблюдения
- Управление домом осуществляется товариществом собственников жилья (ТСЖ)
5. Дополнительные бонусы:
- Продаётся вместе с мебелью и техникой
- Любая форма расчетов, возможна ипотека
- Один взрослый собственник, без обременений и перепланировок
- Возможность просмотра квартиры в любое удобное для Вас время
Таким образом, предложение выглядит привлекательным благодаря своему расположению, качеству ремонта и удобным условиям покупки. Если вы рассматриваете покупку недвижимости в данном районе, эта квартира заслуживает внимания.

Отопление
Центральное
Сан.узел
Раздельный
Количество балконов
Нет
Количество лоджий
1
Пассажирских лифтов
1
Грузовых лифтов
1
Статус
Свободна
Высота потолков
2,6 м
Интернет
Телефон
Спутниковое / Кабельное ТВ
Доступно людям с ограниченными возможностями
Консьерж
Охраняемая территория
Мусоропровод
Газ
Огороженная территория
Домофон
Счетчики воды
Пандус
Тип предложения
Вся квартира
Площадь
56,8 м2
Жилая
32,5 м2
Кухня
9,4 м2
Площадь комнат
[14.4, 18.1] м2
Комнат всего
2
Материал стен
Кирпич
Тип
Типовая
Тип здания
Современное домостроение
Первичная продажа вторички
Да
Ремонт
Евростандарт
Этаж
5 из 12
Район
Фрунзенский
Кадастровый номер