Продается дом,
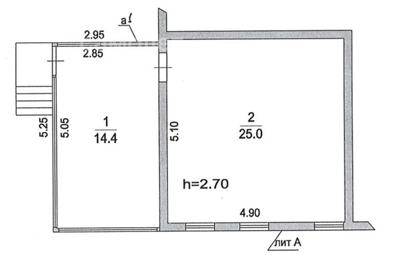
Московская прописка! Продаю участок ЛПХ 419 кв.м., с выделенной внатуре комнатой 25м2 с террасой 14,4 м2 в индивидуальном жилом доме. Комната жилая, с пропиской, отдельный вход, терраса, требуется реконструкция. Электричество. Участок 419 кв.м. в индивидуальной собственности. Часть дома оформлена и выделена внатуре по документам как комната 25 кв.м., уборная также зарегистрирована.Деревня жилая, живописная. До деревни ходит автобус от станции метро «Теплый Стан» и автобус от станции Подольск. Подъезд к участку асфальтированная дорога. Около дома детская и спортивная площадки. Показы по предварительной договоренности. Готовы ответить на Ваши вопросы, ежедневно с 10.00 до 21.00. Специалист по недвижимости: Елена.
Арт. 69424210
Охраняемая территория
Огороженная территория
Круглогодичный доступ
Телефон
Интернет
Спутниковое / Кабельное ТВ
Гараж
Баня / Сауна
Бассейн
Бойлер
Мансарда
Возможна прописка
Лес
Терраса
Погреб
Душ
Водоем
Похожие объекты
Продается дом,
СНТ Дружный тер, Вороновское п
4 800 000
Продается дом,
Шахово д, Краснопахорское п
11 400 000
Готовый дом для постоянного проживания
СНТ Швейник-ПШО Москва тер, 39
44 950 000
Продается дом,
СНТ Полянка Наро-Фоминский леспромхоз тер, 3
9 200 000
Отличное предложение.
Раево д, Краснопахорское п
11 000 000



























































