Уступка 2Е с отделкой Прайм Прим.

Арт. 117695115 Предлагается к продаже по переуступке 1- кoмнатная квартирa (евро-двушка, 2Е) в кирпично-монолитном доме в жилом комплексе комфорт-класса ПРАЙМ ПРИМОРСКИЙ. Корпус 3. Секция 2.4. Сдача дома - 1кв.2026г. Ключи - 3 квартал 2026г.
О ПРОДАЖЕ И ДОКУМЕНТАХ:
-Переуступка от физ.лица (договор цессии).-Обременение Сбербанка (квартира приобреталась по семейной ипотеке, траншевая).-Один взрослый собственник, который будет лично присутствовать на сделке, несовершеннолетних собственников нет.-Материнский капитал и другие субсидии при покупке не использовались.-Полная стоимость в договоре.-При необходимости можем помочь с одобрением ипотеки.
О КВАРТИРЕ:
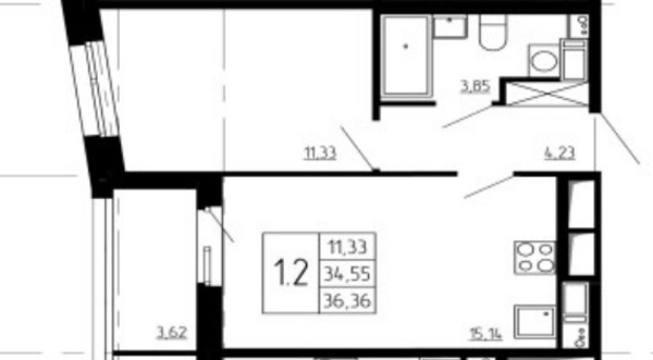
-Общая площадь 34.55 м.кв., приведённая вместе с балконом 36,36 м.кв.-Просторная кухня-гостинная-15.14 м.кв. с выходом на застеклённую лоджию - 3.62 м.кв. Уютная комната - 11.74 м.кв. Площадь прихожей 4.23 м.кв.-Высота потолков - 2,77м.-Совмещённый санузел с настенной керамической плиткой от пола до потолка.-Вид из окон в тихий закрытый двор.-Квартира сдаётся с полной чистовой отделкой Nord Line Silver от застройщика. Полный комплект качественного сантехнического оборудования, акриловая ванна, раковина с тумбой и смесителем, напольное кварц-виниловое покрытие, натяжные потолки, керамогранит на балконе, обои в светлых тонах с покраской, межкомнатные двери-МДФ, входная металлическая дверь.-Комфортный 4 этаж, улицу совсем не слышно, тишь и благодать.-Хорошая шумоизоляция и комфортная среда.
О ДОМЕ И ИНФРАСТРУКТУРЕ:
-Жилой комплекс расположен в Приморском районе на Парашютной улице. Границей комплекса с другой стороны станет Шувалoвский карьер.-Кирпично-монолитный дом, ключи не позднее 30.09.2026 г.-Центральная входная группа.-Приватные лаундж-зоны на крыше дома с панорамными видами на карьер и лесной массив.-Креативное пространство в центре проекта.-Зонами притяжения станут «парящий» лунный мост с качелями и липовая аллея.-Устраивать уютные прогулки жители смогут по променаду вдоль домов, обращенных к Шуваловс

Ипотека
Да
Переуступка
Да
Отопление
Центральное
Количество балконов
Нет
Количество лоджий
1
Пассажирских лифтов
1
Статус
Альтернатива
Высота потолков
2,77 м
Интернет
Телефон
Спутниковое / Кабельное ТВ
Доступно людям с ограниченными возможностями
Консьерж
Охраняемая территория
Мусоропровод
Газ
Огороженная территория
Домофон
Счетчики воды
Пандус
Тип предложения
Вся квартира
Площадь
34,55 м2
Жилая
11,33 м2
Кухня
15,14 м2
Площадь комнат
[11.33] м2
Комнат всего
1
Материал стен
Монолит-кирпич
Тип
Типовая
Дата сдачи
III квартал 2025
Название ЖК
ЖК «Прайм Приморский», Корпус 1
Переуступка
Да
Ремонт
Косметический
Этаж
4 из 12
Район
Приморский