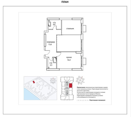
ЭКСКЛЮЗИВНОЕ ПРЕДЛОЖЕНИЕ ОТ НАШЕГО АГЕНТСТВА И БАНКА ПАРТНЕРА НА ПОЛУЧЕНИЕ ИПОТЕЧНОЙ СТАВКИ ОТ 12,25%!Продам КВАРТИРУ формата 3-ЕВРО в ЖК бизнес-класса "Сердце столицы". Квартира очень светлая благодаря панорамным окнам и высоким потолкам. Высота потолков 3.1 м. Квартира без ремонта. Возможное планировочное решение: кухня-гостиная, мастер-спальня со своим санузлом, спальня, гардеробная, гостевой санузел.В Жилом комплексе имеется собственная хорошо развитая инфраструктура: школы, детские сады, спортивные площадки, беговые дорожки, скейтпарк, уличные тренажеры, велодорожки, зоны для выгула собак, торговый центр, кафе, рестораны; фитнес-клубы, в том числе с бассейном, множество магазинов. Огороженная охраняемая территория 24/7 с подземным паркингом. Ведется видеонаблюдение. Отличная логистика: удобный выезд на Звенигородское шоссе, ТТК и ЮВХ. До МЦК Шелепиха 7 минут пешком. В 2026 году рядом с домом планируется открытие станции метро Звенигородская. Свободная продажа. Полная стоимость в ДКП. Быстрый выход на сделку. С нами возможно одобрение ипотеки по ставке 12.75%.
Арт. 117705945
Интернет
Телефон
Спутниковое / Кабельное ТВ
Доступно людям с ограниченными возможностями
Консьерж
Охраняемая территория
Мусоропровод
Газ
Огороженная территория
Домофон
Счетчики воды
Пандус
Двор под шлагбаумом
Двор без машин



























