ИДЕАЛЬНО ДЛЯ СЕМЬИ ИЛИ ИНВЕСТОРА

Арт. 115511140 Идеальна для многодетной семьи!Подойдет для покомнатной и посуточной аренды!Доход от аренды – от 120 тыс.руб/мес5 минут пешком от метро «Печатники»
Вас непременно заинтересуют следующие аспекты этого предложения:Один собственник, не в залоге, документы к сделке готовы.
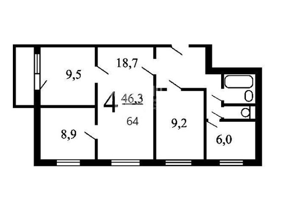
Три изолированные комнаты (9,2 м², 8,7 м², 9,6 м²)
Общий доступ к раздельному санузлу и кухне.
В пешей доступности находятся школы и детские сады.
Три общеобразовательные школы с дошкольными отделениями.
Два детских сада.
Одиннадцать секций и спортивных клубов.
Во дворе детская площадки

Звоните, записываем на просмотр!
А если нужна ипотека — поможем подобрать варианты со сниженной ставкой!

Ипотека
Да
Отопление
Центральное
Количество балконов
1
Пассажирских лифтов
1
Статус
Свободна
Интернет
Телефон
Спутниковое / Кабельное ТВ
Доступно людям с ограниченными возможностями
Консьерж
Охраняемая территория
Мусоропровод
Газ
Огороженная территория
Домофон
Счетчики воды
Пандус
Тип предложения
Вся квартира
Площадь
62,7 м2
Жилая
46,3 м2
Кухня
6 м2
Площадь комнат
[(9.2+8.7), 9.6, 18.8] м2
Комнат всего
4
Материал стен
Блок
Тип
Типовая
Ремонт
Под отделку
Этаж
6 из 9
Район
Юго-восток
Микрорайон
Печатники