Дом для жизни вашей мечты!
Арт. 111848707 Дом для жизни вашей мечты в ДНТ «Виктория»
Этот дом построен для жизни. Здесь вы почувствуете себя по-настоящему дома — в тепле, уюте и с полной свободой для будущих планов.
О качестве и комфорте:
Дом сложен из дорогого керамического кирпича, на совесть: мощный фундамент, двойное утепление базальтовой ватой (зимой тепло, летом прохладно), надежная кровля из толстой металлочерепицы, которая не выцветает со временем. Вам не придется переживать о сквозняках или счетах за отопление.
Простор и свет:
Высокий конек крыши скрывает огромный потенциал — готовый мансардный этаж до 80 кв.м., который вы сможете обустроить под свои нужды (гостевую зону, кабинет, детские). Главная особенность— панорамные окна с энергосберегающими стеклами и немецкой фурнитурой. Они наполняют пространство светом и открывают вид на ваш двор. Представьте, как выходите из спальни прямо в сад через такое окно.
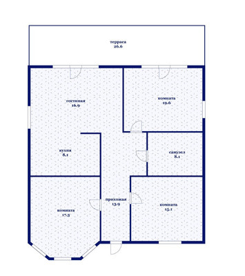
Планировка для семьи:
· Три большие спальни, в одной из которых — выход во двор через панорамное окно.· Просторная кухня-гостиная — сердце дома, с выходом на собственную террасу для завтраков на свежем воздухе и вечерних посиделок.
Отличная локация:
Поселок с развитой инфраструктурой: новая большая школа, детские сады, поликлиника, магазины, аптека, дом быта, гипермаркет «OZ Mall» в 15-ти минутах езды. Всё необходимое — в шаговой доступности.
И главный бонус: рядом отличная транспортная развязка. Выезд на трассу и к морю — быстрый и удобный. Вы легко доберетесь до города, но будете возвращаться в тишину и покой своего пространства.
Только наличный расчет. (Есть еще два дома, возможна Семейная ипотека)
Это не просто стены, это место, где начинается ваша новая история. Готовы его увидеть? Пишите, звоните — отвечу на все вопросы!

































