Предлагается в покупку нежилое помещение, склад общей площадью 961 м2 по адресу: шоссе Энтузиастов, 2 стр. 12, рядом с северо-восточной хордой, связывающей три округа Москвы: север, восток и юго-восток, в пешей доступности от станции метро шоссе Энтузиастов.
Склад располагается в офисно-складском комплексе в престижном районепервый этаж
потолки 6 м
теплый склад, отопление через систему вулкан (прогретая вода в горячий воздух)
офисные помещения отапливаются через центральное отопление, своя котельная
въезд внутрь помещения для большегрузных машин и длинномеров
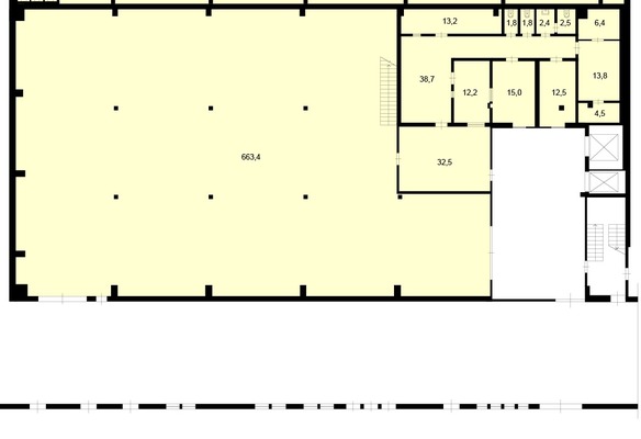
производственно-складская площадь 663,4 м2
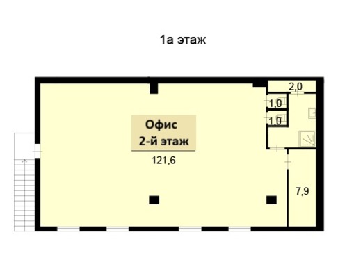
офисная часть 250 м2
доступ 24/7
теплый склад с антипылевыми полами
наземная парковка
близость к основным транспортным развязкам
шаговая доступность от метро, 7 минут пешком
возможность добраться без светофоров в любой район города
центральные коммуникации
круглосуточное наблюдение и охрана
Помещения свободного назначения подходят для складирования, а также под производство. Общая площадь и размеры обсуждаются индивидуально. В наличии мощная электросеть — 4000 кВт, что позволяет подключать современное оборудование.
Также есть городская канализация и все необходимые коммуникации, что обеспечивает комфортное и эффективное использование пространства.
Идеальное решение для компаний, ищущих удобное и оснащённое помещение недалеко от транспортных магистралей.
Есть возможность приобретения производственно-складского помещения с высотой потолков 11 метров до 2700 м2 (помещение 1 и помещение 2).Земельный участок 24115 м2 в аренде на 25 лет до 2030 года с последующей пролонгацией.
Продажа с НДС.Быстрый выход на сделку. Готовы предложить юридическое оформление и сопровождение сделки.Звоните, записывайтесь на показ.Рады ответить на ваши вопросы с 9:00 до 21:00 часа.
Арт. 118031805





















