Просторный 3х этажный дом!
Арт. 98980767 Просторный 3-этажный дом с подвалом для большой семьи или вашего бизнеса
Дом с душой и историей, построенный для жизни «на совесть».
Это не просто дом, это родовое гнездо, изначально спроектированное и возведенное для многопоколенной семьи. Здесь каждая деталь продумана, а качество строительства ощущается сразу — хозяева строили его для себя, с любовью и вниманием к мелочам. Сегодня это уникальная возможность стать владельцем не просто недвижимости, а готового решения для счастливой жизни или успешного бизнеса.
Уникальное предложение: ваш идеальный дом или готовый бизнес-объект! Благодаря продуманной планировке и просторам(общая площадь 363 м²) этот дом открывает для вас массу возможностей:
· Для частной жизни: Простор для большой семьи, где у каждого будет личное пространство, а общие зоны соберут всех вместе.· Для инвестиций: Готовый проект для доходного дома, мини-отеля, хостела или элитного гостевого дома. Большое количество комнат, санузлы и отдельный вход идеально подходят для этого.
Ценность и Масштаб:
· Общая площадь: 363 м² (основной дом 330 м² + практичная пристройка 33 м²).· Вместительный подвал — отличное решение для хранения запасов, организации винного погреба, мастерской или прачечной.
Продуманная планировка для комфорта и уюта:
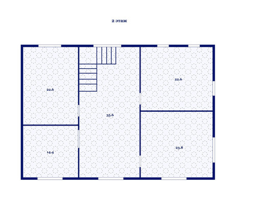
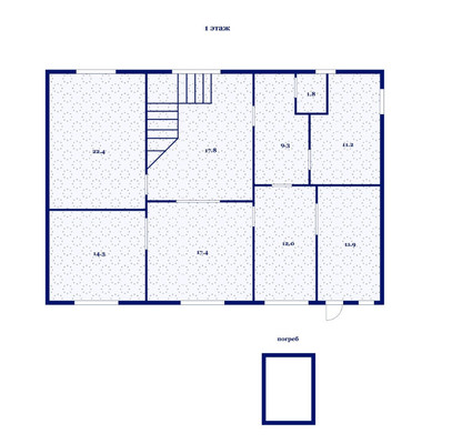
· 1-й этаж: Просторная гостиная для собраний всей семьи, функциональная кухня-столовая, санузел, котельная. Идеально для общих мероприятий.· 2-й этаж: Три уютные спальни, вторая гостиная (или кабинет), санузел и гардеробная. Пространство для уединения и отдыха.· 3-й этаж: Ваша зона возможностей! Готовый зал для спорта, библиотеки, домашнего кинотеатра или бильярдной.
Современные коммуникации и бонусы:
· Все центральные коммуникации подведены (газ, вода, электричество).· Гараж со смотровой ямой — для авто и хранения инструментов.· Участок 7 соток с плодовыми деревьями — место для детских игр, летних обедов на свежем воздухе и единения с природой.
· Все преимущества загородной жизни без отрыва от цивилиз




