Продам однокомнатную (1-комн.) квартиру, Профсоюзная ул, 69, Москва г
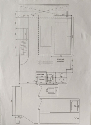
Код объекта: 1828400.<br/>Отличная, готовая к проживанию квартира-студия 17,6 кв. м на Профсоюзной улице, 69.<br/>Отличное предложение для студентов, молодых специалистов, инвесторов в Москве!<br/><br/>Квартира находится на 3 этаже 15-этажного дома. Большое окно выходит во двор - светло, нет шума.<br/><br/>10 мин пешком от метро Калужская или Беляево. Традиционно студенческая локация, где удобно недорого поесть, отдохнуть и быстро добраться до огромного числа вузов.<br/><br/>Это квартира (не апартаментгы, не доля), хорошая и при этом недорогая УК (487 руб. в месяц) отвечает за чистоту, бдительная охрана - следит и за посетителями и за нарушителями спокойствия.<br/><br/>Рассмотрим ваши варианты.<br/><br/>**Рассмотрим ваши варианты, включая обмен!<br/><br/>Что еще делает нас особенными?<br/>**Агентство недвижимости Простор**<br/>Поможем одобрить ипотеку или снизить ставку.<br/>Член Гильдии Риэлторов Москвы, профессиональная ответственность застрахована на 20 млн руб. Ваши инвестиции под надежной защитой!<br/><br/>**Звоните прямо сейчас, чтобы записаться на просмотр!<br/><br/>За квартиру внесен аванс

























