Два дома на одном участке

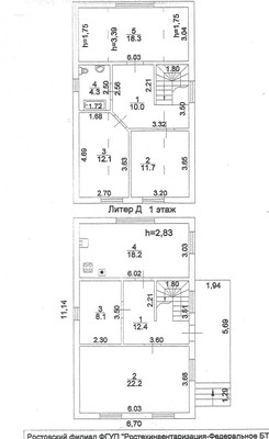
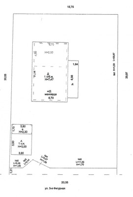
Арт. 118733548 Продаются два отдельно стоящих новых дома с ремонтом и подключенными коммуникациями на одном участке. Большой участок земли 6,1 сотка. Удобный заезд с Малиновского — широкая улица с парковочными местами для гостей. Шестой дом от Малиновского — магистральная улица практически не оказываети негативного влияния. Участок ровный как и подъезд к нему, длина фасада 20 метров. Большой кирпичный двухэтажный дом состоит из четырех спален и просторной кухни гостиной в 18 м2, два совмещенных сан.узла на каждом этаже. Плюс подвал под домом. Второй дом одноэтажный с одной спальней 15 м2, кухней гостиной 18 м2, совмещенным сан.узлом 6 м2 и прихожей 4.5 м2. Bсе коммуникации городские заведены и подключены — газ, электричество, вода. Оборудование - газовые современные настенные котлы, батареи, газовые плиты подключено, центральный водопровод, септик. Дома теплые. На участке достаточно мест для парковки автомобилей, и при желании можно красиво облагородить ландшафт — места для этого достаточно. В шаговой доступности детские сады и школы, остановки общественного транспорта во все направления города и пешеходный переход на противоположную сторону Малиновского. Район благоустроенный - Пятерочка, Золотой Вавилон и Окей и пр..Возможны любые формы оплаты. Один собственник.Покупая с нами, Вы получите:гарантированную юридическую чистоту сделки - по 64 пунктам произведена проверка дома, земли и собственника!По факту совершения сделки будет выдано гарантийное свидетельство чистоты сделки с материальной ответственностью компаниибесплатные консультации по всем объектам недвижимости!сопровождение клиента со звонка до получения ключейоперативный показявляемся партнерами крупных банков!Предоставляем выгодную ипотеку!

Статус
Свободна
Отопление
Газовое
Электроснабжение
Отсутствует
Газификация
Подведен
Водоснабжение
Центральное
Канализация
Септик
Рельеф
Ровный
Охраняемая территория
Огороженная территория
Круглогодичный доступ
Телефон
Интернет
Спутниковое / Кабельное ТВ
Гараж
Баня / Сауна
Бассейн
Бойлер
Мансарда
Возможна прописка
Лес
Водоем
Площадь
117,3 м2
Площадь участка
6,1 сот.
Расстояние до города
0 км
Материал стен
Кирпич
Назначение земли
Промышленного назначения
Использование земли
ИЖС(индивидуальное жилищное строительство)
Этажей
2
Тип дома
Дом
Мебель
Частично мебелирован
Ремонт
Евростандарт
Форма участка
Правильная
Район
Советский