Арт. 119694897 Продается новый дом-баня в деревне Бережки, квартал Бережки-1 (перед КП Грин вилла).
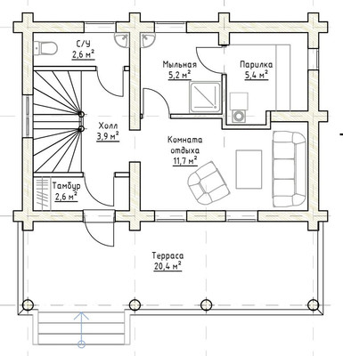
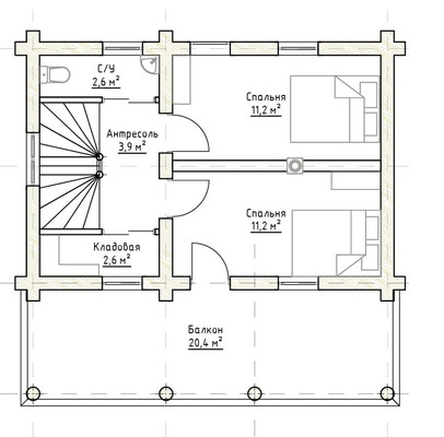
Дом общей площадью 103, 7 кв м. (включая террасу и балкон - по 20,4 кв м каждый). Год строительства - 2025.
Стены из бревна 300 мм. Цоколь из бетона с облицовкой декоративным камнем. Стропила - доска 50 на 200 мм, прогоны - бревна 300 мм. Кровля - черепица. Окна - ПВХ с двойным стеклопакетом.
Планировка:1 этаж - тамбур, холл, с/у, душевая, парилка, кухня-гостиная (11,7 кв м)2 этаж - 2 изолированные спальни по 11,2 кв м, с/у, кладовка
Участок - 4,87 соток. Правильной прямоугольной формы. Никаких зон обременения.
Локация - 20 км от ЦКАД, 50 км от МКАД по Пятницкому шоссе.Автобусная остановка в 600 м. 2,2 км до берега р. Истра, где есть пирс.
1 взрослый собственник.

Статус
Свободна
Отопление
Печь
Электроснабжение
Отсутствует
Газификация
Отсутствует
Водоснабжение
Скважина
Канализация
Септик
Рельеф
Ровный
Охраняемая территория
Огороженная территория
Круглогодичный доступ
Телефон
Интернет
Спутниковое / Кабельное ТВ
Гараж
Баня / Сауна
Бассейн
Бойлер
Мансарда
Возможна прописка
Лес
Водоем
Площадь
103,7 м2
Площадь участка
4,9 сот.
Расстояние до МКАД
0 км
Материал стен
Брус
Назначение земли
Сельскохозяйственного назначения
Использование земли
Фермерское хозяйство
Ближайшее Шоссе
Носовихинское
Этажей
2
Тип дома
Дом
Мебель
Частично мебелирован
Ремонт
Косметический
Форма участка
Правильная