Квартира - River Park Кутузовский

Арт. 120114032 Продается уникальная Квартира с 1-й спальней общей площадью 45 м² в комплексе небоскрёбов премиум-класса «River Park Towers Кутузовский» на набережной Москвы-реки. Квартира без отделки расположена в башне Amber на 7-м этаже. Планировка: кухня гостиная, спальня, санузел, холл. Из окон открываются панорамные виды на город. Комплекс расположен на набережной Москвы реки напротив «Москва-Сити», на стороне района Филёвский парк. На другой стороне реки обустроен Ботанический сад МГМУ. Рядом с домом торговые центры «Океания», «Афимолл» и «Филион». Рядом с комплексом удобный выезд на Северный дублёр Кутузовского проспекта и улицу 1812 года. Удобный выезд на ТТК в 5-ти минутах от комплекса. До Садового кольца можно добраться за 10 минут. Ближайшая станция метро «Фили» в 6-ти минутах неспешным шагом от комплекса. River Park Кутузовский — это воплощение современной роскоши и гармонии с природой. Пять небоскрёбов премиум-класса устремляются в небо на высоту 45–46 этажей на живописной набережной Москвы-реки, напротив «Москва Сити». Архитектурный облик башен создан российским бюро ADM — стеклянные фасады, украшенные изысканными эркерами и французскими балконами с прозрачным ограждением, создают ощущение лёгкости и простора, открывая панорамные виды на город и реку. Между двумя башнями — welcome-зона с парадными входными группами. Лобби и интерьеры, выполнены в современном минималистичном стиле. Здесь вас встретят уютные зоны с каминами, библиотека и стойка консьержа, готового помочь в любой ситуации. Территория комплекса создана по проекту голландского ландшафтного бюро West 8. На стилобате площадью 2 гектара — приватный двор с тенистыми аллеями, детскими и спортивными площадками, и зонами для пикников и мероприятий. Собственная инфраструктура включает фитнес-клуб и спа - комплекс, мужской клуб с бильярдом, караоке зал с виртуальным гольфом, музыкальную студию и детскую игровую комнату. В отдельном здании — частная школа и детский сад. На крышах башен вас

Ипотека
Да
Переуступка
Да
Отопление
Центральное
Пассажирских лифтов
1
Статус
Альтернатива
Интернет
Телефон
Спутниковое / Кабельное ТВ
Доступно людям с ограниченными возможностями
Консьерж
Охраняемая территория
Мусоропровод
Газ
Огороженная территория
Домофон
Счетчики воды
Пандус
Тип предложения
Вся квартира
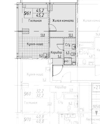
Площадь
45,2 м2
Жилая
26,3 м2
Кухня
9,2 м2
Площадь комнат
[(13.8+12.5)] м2
Комнат всего
1
Материал стен
Монолит-кирпич
Тип
Типовая
Дата сдачи
III квартал 2026
Название ЖК
ЖК «River Park Кутузовский», Корпус 1 (Topaz)
Переуступка
Да
Ремонт
Под отделку
Этаж
7 из 45
Район
Запад
Микрорайон
Дорогомилово