Дом в ДНП Лотта, 15 мин от города

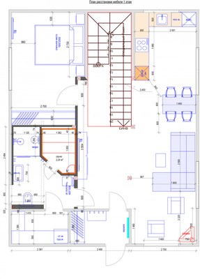
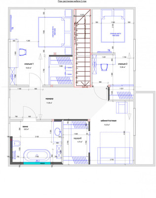
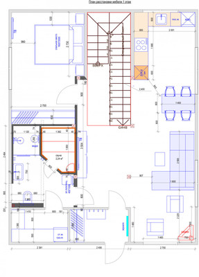
Арт. 118342143 Дом в стиле Бархаус в живописном месте, в 15 мин. от города.На берегу реки "Тулома", ДНП "Лотта».Очень красивый дом. Строили надежно, для круглогодичного проживания.Земельный участок 29 соток.Дом двухэтажный, общая площадь - 160 кв. м. Подойдет для семьи, или, для тех, кто работает удаленно и кому, просто необходима полная концентрация, ведь здесь - атмосферный покой и тишина, и всем хватит места.В доме 4 комнаты, кухня гостиная - 25 кв.м., два сан. узла (по одному-на каждом этаже). балкон с видом на реку, гардеробная, предполагается сауна и камин.
Техническая часть:1.Дом на бетонной плите, коробка из бруса 150 мм. Утепление: каменная вата, высокой плотности 100 мм., потом теплоизоляционные плиты Кнауф, такой пирог утепления, исключает любое продувание конструкции. 2. Окна Veka softlane, профиль 5 камер( премиум), с двухкамерным стеклопакетом 40 мм. +энергосбережение на стекле, плюс таких окон, практически отсутствуют потери тепла из дома! 3. Кровля: 3.1. Утепление 300 мм, каменной ватой, высокой плотности, с перехлестом стыков, плёнка пароизоляции Dorken-Delta, благодаря такой конструкции и материалам, тепло в большом доме - обеспечено! 3.2. В крыше установлены:Вент-выходВент-шахта, с роторным вент-выходом(для хорошей тяги), благодаря этим решениям, в доме всегда будет комфортный микроклимат.3.4. Смонтированы снегозадержатели - безопасность. 3.5. Смонтирована водосточная система - отвод воды от дома.4.Фасадная отделка дома: дерево + металл.
На текущий момент дом готов к проведению внутренних работ по чистовой отделке, что позволяет реализовать индивидуальные мечты для будущего комфортного проживания.На участке ничего "карликового", полноценные деревья, жизненная сила которых восстанавливает иммунитет, а воздух обладает бактерицидными свойствами. Такой воздух - полезен всем. Дом ждёт своего хозяина, который останется доволен своим правильно сделанным выбором объекта недвижимости!Ждем на просмотр. Звоните!

Статус
Свободна
Отопление
Отдельное
Электроснабжение
Отсутствует
Газификация
Отсутствует
Водоснабжение
Скважина
Канализация
Септик
Рельеф
Ровный
Охраняемая территория
Огороженная территория
Круглогодичный доступ
Телефон
Интернет
Спутниковое / Кабельное ТВ
Гараж
Баня / Сауна
Бассейн
Бойлер
Мансарда
Возможна прописка
Лес
Терраса
Водоем
Площадь
160 м2
Площадь участка
29 сот.
Расстояние до города
0 км
Материал стен
Брус
Назначение земли
Земли поселений
Использование земли
Садоводство
Этажей
2
Тип дома
Дом
Мебель
Полностью мебелирован
Ремонт
Под отделку
Форма участка
Правильная