2-комн квартира с большой кухней!

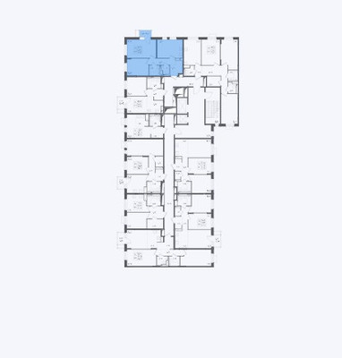
Продаётся 2-комнатная квартира площадью 54,12 м² в жилом комплексе «Пятницкие Луга». Светлые и уютные комнаты с панорамным балконом, большая кухня-гостиная, удобная планировка, современный ремонт. Дом расположен в экологически чистом районе с развитой инфраструктурой и хорошей транспортной доступностью. 1 взрослый собственник, никто не прописан, без обременений. Документы готовы, быстрый выход на сделку.
Арт. 114065333

Ипотека
Да
Переуступка
Да
Отопление
Центральное
Количество балконов
1
Пассажирских лифтов
1
Статус
Альтернатива
Высота потолков
2,77 м
Интернет
Телефон
Спутниковое / Кабельное ТВ
Доступно людям с ограниченными возможностями
Консьерж
Охраняемая территория
Мусоропровод
Газ
Огороженная территория
Домофон
Счетчики воды
Пандус
Тип предложения
Вся квартира
Площадь
54,12 м2
Жилая
26,1 м2
Кухня
13,33 м2
Площадь комнат
[15.5, 10.6] м2
Комнат всего
2
Материал стен
Монолит
Тип
Типовая
Название ЖК
ЖК «Пятницкие Луга», Корпус 1.2
Переуступка
Да
Ремонт
Авторский
Этаж
4 из 12