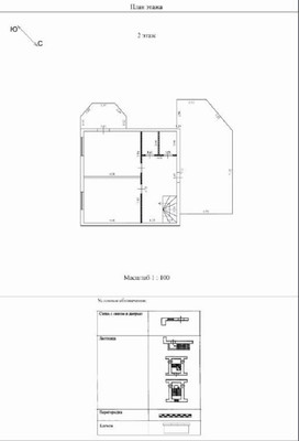
Арт. 120867812 Продается 2х этажный дом в черновой отделке. Первый этаж полноценный плюс мансарда, общей площадью 217.6м2, на участке 745м2. Строили дом для себя с использованием качественных материалов, Фундамент ленточный, стены газобетон, Снаружи для обшивки использовался планкен из лиственницы. Электричество заведено, вода на участке - свой колодец, На первом этаже большая кухня 35м2, одна комната, совмещенный санузел, большой гараж с электрическими автоматическими гаражными воротами и подсобные помещения. На втором этаже две комнаты, совмещенный санузел, большая терраса 40м2, балкон 4м2, Дом нахаодится в чeртe гopoдa Балашихи, но достатoчно удaлен oт шумa шocсe. До лeca 2 минуты пешкoм. До aвтoбуcнoй oстанoвки 7 минут пeшкoм. Очень удобный заезд и выезд с Горьковки.Собственница 1, прописанных 1 человек. Звоните, организуем оперативный показ!




