1-комнатная квартира в Центре!
Арт. 122468172 Продаю 1-комнатную квартиру по ул. Пугачева, д. 55.
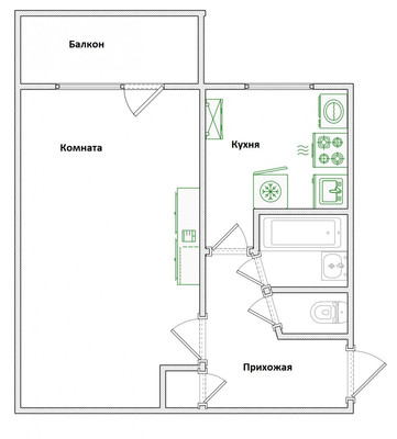
Центральный район города.Квартира на 2-ом этаже 5-ти этажного дома.Дом Кирпичный, образцового содержания. Площадь квартиры 30.2 кв.м. + балкон
Площадь жилой комнаты 17.5 кв.м.Кухня 6 кв.м. В квартире:
- Пластиковые стеклопакеты,- Остеклённый балкон с прекрасным видом,- Раздельный санузел,- Все трубы в стояках поменяны.- Есть кладовое помещение.Сама квартира требует косметического ремонта. Отличным бонусом для Вас будут:
- Изящная стенка в комнате,- Холодильник,- Стиральная машина,- Газовая плита. Квартира расположена в центральном районе города.
Здесь: - Детский сад № 99, школа № 58 и финансово-экономический лицей, - Колледж пищевой промышленности и коммерции, школа искусств. - Множество магазинов, включая ТЦ «Суворовский», - Удобная транспортная развязка. Звоните и приходите на показ!

























