Продается 3к.кв.,
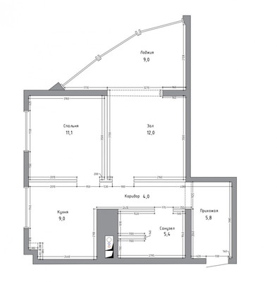
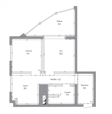
Арт. 119228303 Продается 3-х комнатная квартира в самом центре Сочи! фактически 62 метра (большая лоджия) В квартире идет ремонт. выполнена отделка вайт бокс, выполнена черновая разводка электрики и коммуникаций.
Есть готовый дизайн-проект, готовы выслать для ознакомления. Частично фото есть в карусели По проекту планируется: две изолированные спальни (одна из них с большой лоджией), светлая кухня-гостиная, два санузла.
Элитный pайон, соседи: Наyаtt 5*, Меrсury, Рullmаn! Жилой комплекс находится в окружении курортных и туристических достопримечательностей. До моря (до центральной набережной) 10-15 мин. пешком . В шаговой доступности от дома (50-100 метров) есть продуктовые магазины. Также вблизи от дома, несколько кафе, две аптеки,
Много красивых прогулочных аллей и парков. В 5-ти минутах находится "Японский сад", Площадь Искусств, Зимний театр, концертный зал Фестивальный, парк Ривьера, Морской вокзал. Один взрослый собственник. Документы готовы к сделке













































