Продается дом,
Арт. 117578103 Цена указана за наличный расчетВ ипотеку цена 7500 000₽
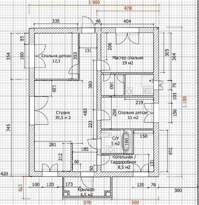
ОСНOBHЫЕ ХАРАКТЕРИСТИКИ:Площадь участка: 7,4 соткиПлощадь дома: 100 кв.мМатериал стены: керамзитный блок 300мм+утеплитель 100мм+короед Фундамент: свайно-ленточный(сваи диаметр 300мм, длина сваи 3м).Полы: плита армированная + теплый полФасад: короед +планкенКрыша: металлочерепицаПо периметру забор с откатными воротами, установлена автоматикаДвор забетонирован , дорога до дома засыпана щебнемКачественная дверь с терморазрывом
ПРЕИМУЩЕСТВА:Дом с крыльцом и большой террасой для уютных летних вечеров с семьей!Дом сдаётся в чистовой отделке.Новый кухонный гарнитур.В доме имеется просторная кухня-гостиная, 3 спальни, совмещённый санузел, кладовая.
КОММУНИКАЦИИ:Центральное водоснабжениеЭлектричествоШамбо на 3 кольцаГаз
О СДЕЛКЕ: Проходит по семейной ипотеке! Любая форма оплаты: наличный расчет, ипотека, сертификаты.Этот дом идеально подходит для тех, кто хочет наслаждаться загородной жизнью.

































