Участок в ФМР! Редкая удача!
Арт. 98241881 Продается земельный участок в ФМР. Редкий шанс купить землю в центре города!Располагается в уютном и тихом переулке. Участок полностью расчищен - можно сразу приступить к строительству.
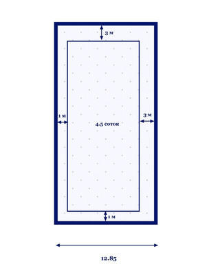
Площадь участка 4 сотки.Фасад: 12,85 метра на одной стороне и 13,20 метра на задней части, что обеспечивает возможность комфортного размещения жилого дома и придомовой территории.Ширина участка 8,85 метра.
Преимущества:Разрешение на строительство: Получено разрешение от администрации на строительство с отступами 1 метр, что является важным плюсом и подтверждает законность данного участка для постройки.
Строительный вагончик: На участке уже установлен новый строительный вагончик, который может служить временным жильем или хранилищем для строительных материалов, что значительно упрощает процесс строительства.
Инфраструктура: В 5 минутах ходьбы находится школа, что делает участок идеальным для семей с детьми. В радиусе 10-15 минут доступна вся необходимая городская инфраструктура, включая магазины, медицинские учреждения и общественный транспорт.
Всего в 5 минутах на машине находится улица Красная.
Этот участок – отличное предложение для тех, кто хочет построить дом в центре Краснодара. Спешите, такие предложения не задерживаются на рынке долго! Звоните!











