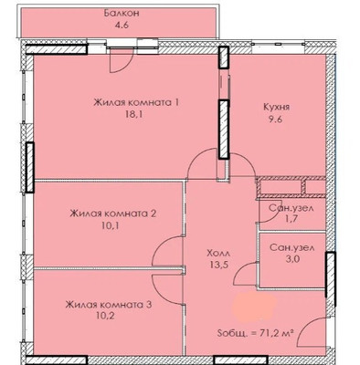
Продаётся трехкомнатная квартира .
Свободная планировка !
Уникальное расположение прямо напротив Храма Рождества Христова .Авторский проект.
Покупка осуществляется путем вступления в ЖСК "Измайловский проезд, 22-1" (договор паенакопления).
О доме:
На рендерах можно увидеть, как будет выглядеть дом после завершения реконструкции.
По сути его можно назвать младшим братом ЖК "Виноградный", стили во многом схожи.
10-этажное 3-подъездное монолитно-кирпичное здание комфорт-класса, которое появилось в результате реконструкции крепкого пятиэтажного дома с надстройкой 5 этажей (с 6 по 10) на независимом новом фундаменте.
В ходе реконструкции в здании не только надстроены верхние этажи, но и будет обновлен фасад, полностью заменены все инженерные коммуникации, а также установлены современные лифты и крутые стеклопакеты.
Привлекательные цена, объект находится в стадии отделки.
Всего 99 квартир в 3 подъездах.
- Дом расположен на территории «старой Москвы» в историческом районе с развитой инфраструктурой;
- Рядом Сиреневый и Измайловский бульвары, Сиреневый сад, Серебряно-Виноградный пруд, Усадьба Измайлово, Измайловский Кремль, Измайловский лесопарк, Церковь Рождества Христова;
- Закрытая территория, Безопасный двор. Огороженная территория, видеонаблюдение;
- Эксклюзивный архитектурный облик дома;
Панорамное остекление, керамогранит и декоративные элементы из стеклофибробетона
Свободная планировка.
Высокие потолки-2.9 м.
Зеленое окружение.
Парковка без проблем. Внутридомовая гостевая парковка на 30 мест, рядом с домом городская на 60 мест.
Интернет
Телефон
Спутниковое / Кабельное ТВ
Доступно людям с ограниченными возможностями
Консьерж
Охраняемая территория
Мусоропровод
Газ
Огороженная территория
Домофон
Счетчики воды
Пандус
Двор под шлагбаумом
Двор без машин





















