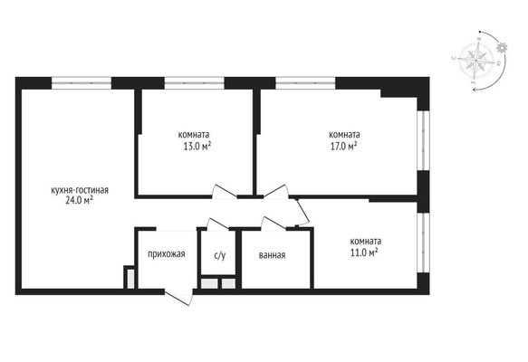
Трешка с кухней-гостиной 24 кв.м
Арт. 122833263 Видовая квартира. Кухня-гостиная 24 кв.м. Три изолированные комнаты. Ремонт от застройщика. Никто не проживал.
Комната 17, 13 и 11 кв.мПрихожая с вместительной нишей под шкафДва санузлаРазводка под кондиционеры в каждой комнате
ЖК Дмитровский парк. Дом 2021 года. Отдельная одноподъездная секция. Видовой 25-й этаж.
Закрытый двор без машин. На территории детский сад, магазины, аптеки, кафе, салоны красоты. Подземный паркинг.Комплекс расположен рядом с двумя парками: Вагоноремонт и Ангарские пруды.
За отдельную плату предлагаем кладовку 6 кв. м.
Квартиру приобретали у застройщика. Свободная продажа. Полная стоимость в договоре.
Интернет
Телефон
Спутниковое / Кабельное ТВ
Доступно людям с ограниченными возможностями
Консьерж
Охраняемая территория
Мусоропровод
Газ
Огороженная территория
Домофон
Счетчики воды
Пандус



























