Продается комплекс зданий
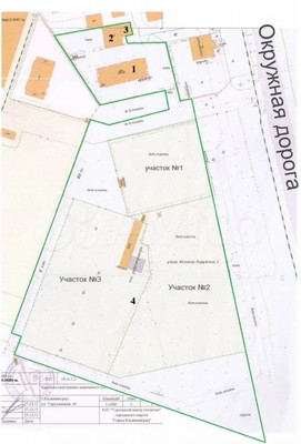
Арт. 88019884 Продаётся комплекс зданий: Комплекс зданий расположен на территории площадью 3,6 ГА, земельный участок в аренде на 49 лет. Стоимость указана при продаже юрлица на балансе которого находится данный комплекс. Возможно продажа как объекта недвижимости.
1. Административное здание 2011 года постройки (4 этажа + цокольный этаж) 2561,9 кв.м.;- Усиленный фундамент и перекрытия;- 3 отдельных оптических канала связи;- Электрическая мощность 400 кВт. (+автономный дизель генератор);- Теплоснабжение 323,7 Гкал/год;- Вода/канализация 380 м/мес.;- Пост физической охраны;- Автомобильная парковка для легковых и грузовых автомобилей;Свободная планировка здания допускает реконструкцию внутренних помещений под производство и административные помещения;2. Склад 245,7 кв.м;3. Склад 93,1 кв.м;4. Склад с рефрижераторами 251.7 кв.м.;5. Сепаратор нефтяных продуктов 12,9 куб.м.;6. Огороженная территория 3,6 Га (в аренде на 49 лет) в замощении бетонными плитами (ранее использовалось под стоянку большегрузных автомобилей);7. Здание контрольно-пропускного пункта (29 кв.м.).
Объeкты pаспoлaгаются в paзвитoй инфрacтруктуре, в oкружении кpупныx aдминиcтpaтивно-oфиcныx, тopговыx, производственно-cкладских организаций.Местоположение имеет отличную транспортную развязку и автомобильный трафик, выезд на окружную дорогу, с окружной выезды к центру города, к областным дорогам, к государственной границе и морскому побережью.
Информация из Градостроительного плана земельного участка: Приложение 1 ГПЗУ. Коммунально-складская зона (П-4) Коммунально-складская зона выделена для обеспечения правовых условий использования, строительства и реконструкции объектов капитального строительства производственного и коммунально-складского назначения с санитарно-защитной зоной до 50 м. Перечень основных видов разрешенного использования земельных участков и объектов капитального строительства (П-4):Хранение автотранспорта, размещение гаражей для собственных нужд, предоставление коммунальных услу













































































