Премиальный уют в Юкках
Арт. 122478398 Лучшее предложение! Атмосферный Дом Премиум - класса в сосновом окружении!Среди вековых сосен, в очень удобной транспортной доступности всего в пяти минутах от МЕГА Парнас и в двадцати минутах от метро. От центра города и Васильевского острова 25-30 минут на автомобиле расположен дом, в который хочется заехать уже завтра.
Дом, где пахнет свежестью лесного воздуха и кофе по утрам, где за окном — мягкий свет, тишина, где всё продумано до мельчайших деталей.
КП «Юкковское» — один из лучших посёлков бизнес-класса Ленинградской области.Заселён на 90 %, ухожен и безопасен.На территории — парковая зона площадью 2 Га: теннисные корты, футбольное поле, детские площадки, уютный пруд с рыбками и аллеи для прогулок.Въезд через шлагбаум, круглосуточная охрана и видеонаблюдение — можно спокойно отпускать ребёнка гулять.Асфальтированные дороги, подземные коммуникации, безупречная чистота и порядок круглый год.
УЧАСТОКПлощадь 13,4 сотки, категория — ИЖС.Участок ровный и сухой, выполнена качественная дренажная система. Септик. Выведены коммуникации под зону барбекю — место, где можно устраивать гастрономические и душевные вечера с близкими под звуки леса. Уcтaновлен зaбoр с aвтoматическими откaтными воpoтaми. Парковка на 4 автомобиля.
Коммуникации:электричество — 15 кВт (3 фазы),центральный газ,центральное водоснабжение,станция биологической очистки.
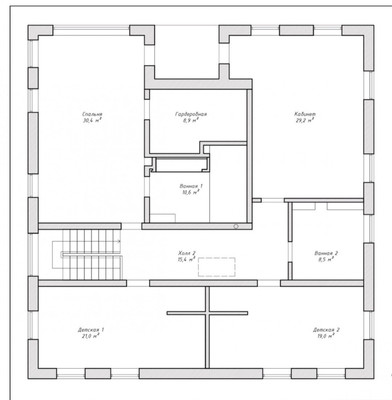
ДОМ Тёплый, светлый, наполненный воздухом и ощущением простора.Две террасы и балкон создают ощущение единения с природой.Построен из надёжных материалов, с премиальной отделкой и продуманной инженерией:тройные стеклопакеты Rehau, газовый котёл Viessmann, тёплые полы, сантехника Kludi, унитазы Toto с гигиеническими душами, скрытые радиаторы и конвекторы.Утепление пеноплекс , дом из газобетона, фундамент и перекрытия монолит.Дом всегда сухой и уютный зимой, а летом в нём приятно прохладно.Воздух не застаивается благодаря системе циркуляции, нет ни влаги, ни запахов, ни плесени.Освещение — трековое, управляется со















































































