Продается 1к.кв.,
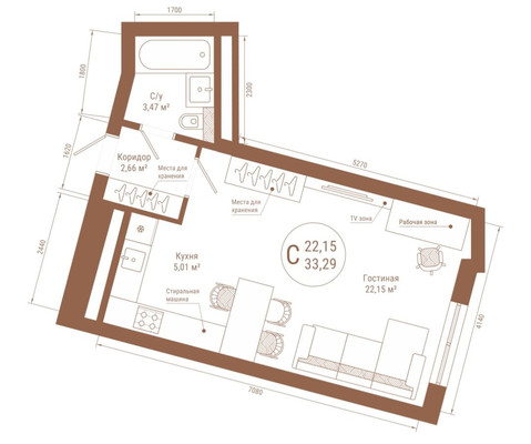
Арт. 125188372 Продаётся уютная квартира площадью 33.3 квадратных метра в новом монолитном доме, расположенном в приятном районе города Уфа, Кировский район, Южный микрорайон. Квартира расположена на 12 этаже 26-этажного дома, что позволяет наслаждаться прекрасным видом из окон на улицу, водоем и лес. Внутри вас ждет просторное жилое пространство без проведенного ремонта это отличная возможность обустроить интерьер по своему вкусу и предпочтениям. Для комфорта жителей во дворе предусмотрены детская и спортивная площадки. Безопасность обеспечивается консьержем, закрытой территорией и кодовой дверью. Также имеется удобная парковка - подземная и во дворе. Район обладает развитой инфраструктурой: в шаговой доступности находятся школы, детские сады, включая ABC-kids и центр развития ребенка, а также разнообразные магазины и супермаркеты, такие как Пятёрочка. Рядом расположены аптеки (Фармленд и другие), студии красоты (Lilu, Timroz_SPA) и даже фитнес-центры и парк для приятных прогулок на свежем воздухе. Это отличный выбор для тех, кто ценит комфорт, безопасность и качество жизни. Приглашаем на просмотр вашего будущего дома! При необходимости могу предоставить дополнительно фото и видеоматериалы!

















