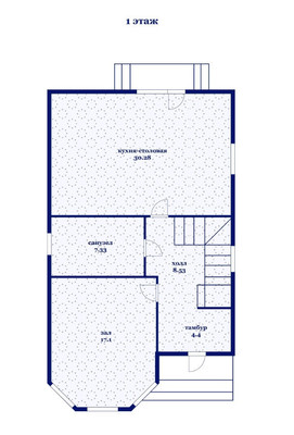
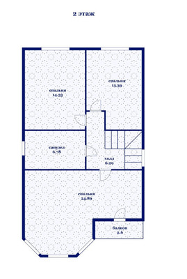
Продается дом
Арт. 123535284 Продаётся уютный двухэтажный дом в посёлке Северном!Дом с качественным ремонтом — полностью готов к проживанию, можно заезжать и жить без дополнительных вложений.
На участке оборудована уютная терраса, где приятно проводить вечера с семьёй или друзьями.
Посёлок Северный — комфортный район в Краснодаре, сочетает комфорт городской жизни и тишину частного сектора.Рядом всё важное для жизни:магазины и пункты выдачи заказов (Ozon, «Магнит»);
в нескольких минутах — ТЦ «Красная площадь», «Экспоград Юг», «Баскетхолл», ТЦ «Сыр»;
рядом школа самбо, Дворец водных видов спорта, школы и детские сады.
Удобный выезд на трассу — легко добраться до центра города, а также к морю в сторону Крыма и Сочи.
Звоните прямо сейчас — отвечу на все вопросы и организую просмотр в удобное для вас время!





























































