Продается квартира
Продаётся уникальная 2-комнатная квартира в районе "Университета", ул. Чернышевского, г. Нальчик!
Просторная и светлая квартира отлично подойдёт для семьи, пары или тех, кто ценит комфорт и удобное расположение в центре событий.
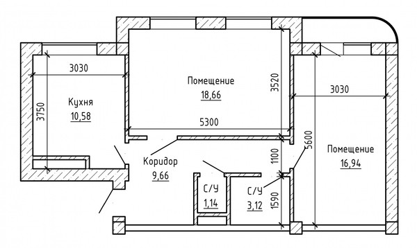
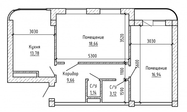
Общая площадь — 68.10 м².Квартира расположена на 9 этаже нового жилого дома.Высокие потолки — 3 м — создают ощущение простора и уюта.
Планировка включает:2 Спальные комнаты, 1 комната с 2-мя окнами
Кухню
Большую прохожую
Раздельный санузел
Дом сдан в 2020 году, современный и ухоженный.
Подъезд чистый, лестничные площадки в идеальном состоянии.Во дворе есть парковочные места и так же подземный паркинг, всё необходимое для комфортного проживания.
Инфраструктура — одна из лучших в городе: — КБГУ — Республиканская клиническая больница — Центральная поликлиника — ТЦ «Среда» — Кафе, рестораны, магазины, супермаркеты — Мойки, АЗС
В шаговой доступности три остановочных комплекса, от которых проходят 70% маршрутов города — удобно добраться в любую точку Нальчика.
Документы готовы к продаже2 Собственника
Полное юридическое сопровождение сделки Оперативный показ в удобное время. ЗВОНИТЕ
Арт. 119215673

















































