Продажа дома в Ботанике
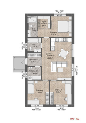
Арт. 125536393 One_86 — новинка 2025 в нашей линейке, который полюбится и взрослым, и детям. Ведь в его планировку заложен ряд преимуществ, которые делают загородную жизнь удобной для всех членов семьи.Факт от нашего архитектора: архитектор специально спроектировала этот дом с большими окнами с заниженной посадкой. Благодаря этому в доме всегда много естественного света, нет темных коридоров, а пространство кажется еще более легким, просторным и воздушным. В состав помещений входят:Прихожая с нишей для систем хранения (4,18 м²). Хватит места для обуви и верхней одежды всех членов семьи и даже гостей.
Просторная кухня-гостиная (28,6 м²). Здесь вам откроется великолепный вид из двух больших панорамных окон с выходом на террасу. Кстати, эти окна находятся прямо напротив входа и, попадая в дом, вы сразу ощутите большое количество света и свободного пространства. Но главное преимущество этой зоны в том, что она отделяет две детские спальни от родительской.
Родительская мастер-спальня (12,43 м²). Отличие мастер-спальни от обычной — в том, что в мастер-спальне есть свой отдельный санузел и гардеробная. А если сюда заказать пиццу и есть ее, лежа в кровати, можно вообще не покидать пределы своего «островка спокойствия»
Две детские спальни (по 12 м²). Возможно, вы обратили внимание, что многие современные взрослые, вспоминая свое детство, расстраиваются, что тогда у них не было своей отдельной комнаты. К счастью, эта психологическая травма обойдет ваших детей стороной! К тому же, спальни одинакового размера — никому не будет обидно.
Котельная (4,02 м²). Здесь можно даже оборудовать прачечную — занимать место в санузле стиральной машиной не придется!
Два санузла (4,54 м² и 4,47 м²). Один из них находится в родительской мастер-спальне и принадлежит только главным хозяевам этого дома. А второй — гостям и детишкам. Никаких сражений за место у раковины по утрам — красота!
НА ТЕРРИТОРИИ ПОСЕЛКА:Закрытый поселок, круглосуточная охрана и видеонаблюдение;
Асфальтированные до











