Продается дом,
Арт. 125571034 Продается уютный частный дом 121,1 м² , расположенный по адресу: Московская обл., Люберецкий р-н., Сельцо с., Южная-3 ул. ИЖС - 5,81 сот.
ПРО ДОМ:— Год постройки: 2021 г.— Площадь дома: 121,1 м²;— Материал стен: деревянный каркас, по середине утеплитель минвата 20 см. , пеноплекс 5 см , отделка мягкая кровля HAUBERK— Электричество: 15 кВт, 3 фазы;— Газовое отопление — Водоснабжение: скважина , установлены фильтры для очистки, вода чистая без цвета и запаха. Отдельно установлены фильтры для питьевой воды. — Канализация с тремя ступенями очистки;— Фундамент свайный;— Высота потолков 3,10 метра;—Мансардный второй этаж;— Крыша - металлическая черепица;—Полы - ламинат, керамическая плитка;— Мебель остаётся полностью;— Второй этаж требует ремонта.
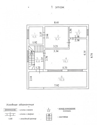
ПЛАНИРОВКА:— 1 ЭТАЖ: большая веранда, прихожая, кухня, гостиная, совмещенный санузел, кладовая;— 2 ЭТАЖ: свободная планировка
УЧАСТОК площадью 5,81 соток ровный, ухоженный. На участке:— Плодовые деревья — Площадка для парковки машин — Хозблок
Развитая ИНФРАСТРУКТУРА:— Рядом частный и сетевые продуктовые магазины "ДА", "Пятёрочка", "Чижик".— ПВЗ WB, OZON, Мегамаркет— Социальные объекты в населенных пунктах Островцы и Октябрьский (5 минут на транспорте) — Пляжи для отдыха и купания— Рядом расположены горнолыжные центры: Клуб Гая Северина и Боровской Курган, набережная Москва-реки — Автодром АДМ, конный клуб и аэродром Мячково.
ТРАНСПОРТНАЯ ДОСТУПНОСТЬ:— 15 км от МКАД Новорязанское Шоссе Московская область— Остановка общественного транспорта в 10 мин. пешком от дома — До МДЦ Удельная/ Малаховка 12 мин. на транспорте — До м. Котельники 20 мин. на машине
1 взрослый собственникПолная стоимость в договореИпотека в СбербанкеНикто не прописан.
Гарантия юридической чистоты сделки от компании!Дом ПРОВЕРЕН, фотографии соответствуют,Звоните! Записывайтесь на показ объекта прямо сейчас!











































