Сдается коммерческое помещение,
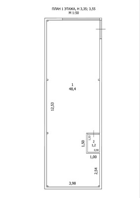
Арт. 125721603 Сдается в аренду многофункциональное коммерческое помещение, свободного назначения , площадью 50 м², правильной прямоугольной формы 12,5×4м.( на трафике продуктовой сети "Кант маркет - Бутыль" . Первая линия перекрёстка улиц Старокаменная - Совхозная. Панорамное остекление ( обширное пространство для вашей рекламы) и Отдельный вход. Высота потолков 3,5 метра. Центральное водоснабжение и водоотведение. Две мокрые точки. Автономное отопление. Электричество : напряжение 220-380, мощность 10 кВт. Свободная парковка для клиентов у входа в помещение. НДС 5 %. Полное юридическое сопровождение договора аренды !
Ремонт за счет владельца
Возможность менять провайдера
Первая линия
Ресторан
Фитнес
Банк
Банкомат
Супермаркет
Арендные каникулы
Интернет
Доступ 24 часа
Видео-наблюдение
Охраняемая территория
Контроль доступа
Есть оборудование
Отдельный вход



































