2х комнатная квартиры в центре
Арт. 125778158 КВАРТИРА В ЦЕНТРЕ ГОРОДА — ВСЁ НЕОБХОДИМОЕ В ШАГОВОЙ ДОСТУПНОСТИ
Продаётся уютная 2-комнатная квартира в самом центре города — идеальный выбор для семьи, которая ценит комфорт, время и стабильность.
ТЕХНИЧЕСКИЕ ХАРАКТЕРИСТИКИ:
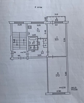
Площадь: 51,2 кв.м.Планировка: «бабочка» — гостиная и спальни отделены, обеспечивая тишину и уединение.Комната 1 — 17,3 кв.м.Комната 2 — 16,5 кв.м.Балкон — 2,6 кв.м.Кладовые — две по 0,4 кв.м. (итого 0,8 кв.м.)Ванная — 2,1 кв.м.Туалет — 1,2 кв.м.Коридор — 6 кв.м.Кухня — 7,3 кв.м.
Дом построен в 1977 году, капитально отремонтирован, МПО. Установлена современная сплит-система — комфорт в любое время года.Квартира юридически чистая, без коммунальных долгов. Все документы готовы — сделка возможна в кратчайшие сроки.
РАСПОЛОЖЕНИЕ:
— Пешая доступность до детского сада №14, школ №2 и №44— Ворошиловский парк — для прогулок и отдыха— Бассейн и Дом культуры — в 5 минутах— Круглосуточный магазин «Стекляшка», кафе, рестораны, салоны красоты, пункты выдачи — всё рядом— Открытая парковка — не нужно искать место вечером
ОСОБОЕ ПРЕДЛОЖЕНИЕ ДЛЯ СЕМЕЙ (И НЕ ТОЛЬКО) КОТОРЫЕ НЕ ПОПАДАЮТ ПОД СЕМЕЙНУЮ ПРОГРАММУ :
Квартиру можно приобрести в ипотеку под 12,25% годовых . Это отличная возможность сэкономить на переплате, особенно если вы планируете использовать материнский капитал или другие льготные условия.
Мы работаем с проверенными банками и поможем подобрать выгодный вариант.Квартира готова к заселению. Никаких скрытых расходов, никаких сюрпризов — только честная сделка и профессиональная поддержка на каждом этапе.Звоните, чтобы договориться о просмотре. Мы ответим быстро, без навязчивости — просто поможем вам найти то, что подходит именно вашей семье.









































