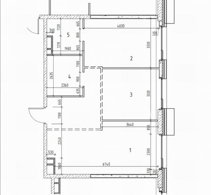
Арт. 123840702 Москва, СЗАО, Хорошево-Мневники, улица Нижние Мнёвники, дом 16, корпус 6. ЖК Бизнес класса "Остров". 5 минут пешком до метро БКЛ "Терехово". 3 этаж 22-х этажного монолитного дома 2025 года постройки.Двухкомнатная квартира (евротрешка) - 74/28/24, мастер-спальня 16 кв.м. со своим санузлом, детская 12 кв.м., второй совмещенный санузел - 6 кв.м., кухня гостиная 24 кв.м., потолки 3.10, панорамные окна в пол. Балкона нет. Квартира в бетоне. Красивая входная группа, круглосуточная охрана. Четыре лифта. Двор без машин с красивым ландшафтным дизайном и зонами отдыха. Подземный паркинг. Школа в соседнем доме. Напротив будет построен закрытый спортивный центр. Удобный выезд на Рублёвское и Новорижское шоссе. ЖК Остров - комплекс бизнес-класса, расположившийся в окружении Москвы-реки и природного парка со своей прекрасной зеленой территорией, а также прогулочной набережной вдоль Москвы реки. В стороне от жилых корпусов возводится крупнейший в Москве спорт кластер с ледовым дворцом и академией хоккея А. Овечкина, работает ФОК "ЦСКА" с 25-ти метровым бассейном, центр фигурного катания Татьяны Навки и еще много всего интересного. Дом сдан, ключи на руках. Один взрослый собственник, покупка у застройщика, полная стоимость, свободная продажа, никто не прописан, без доверенностей и материнского капитала. Возможна ипотека банка ВТБ.
Интернет
Телефон
Спутниковое / Кабельное ТВ
Доступно людям с ограниченными возможностями
Консьерж
Охраняемая территория
Мусоропровод
Газ
Огороженная территория
Домофон
Счетчики воды
Пандус
Двор под шлагбаумом
Двор без машин









































